货架第三方检测-CNAS/CMA/SEMA三重资质认可认定
phone
021-67157048
recent_actors
职业责任险
bubble_chart
产品责任险
security
公正性声明
gavel
侵权声明
首页
188新利app
新利18官方网站下载ios检验
18keno新利登录
18l18luck新利
18iuck新利
18IUCK新利官网
自动化立库检测
智能仓工程咨询
新利18国际娱开户
技术文章
技术问答
资料下载
文摘下载
188新利
关于
资质优势
新闻动态
版权声明
188新利官网
平台
货架安全巡检云平台
仓库货架安全小测试
18luck德甲门
货架认证证书查询平台
联系
新利18国际娱开户
新利18官方网站下载ios
>
新利18国际娱开户
event
2021-11-22
visibility
阅读: 751
货架背挡杆到底需不需要、能不能设置?
问:最近又有朋友咨询背挡杆到底能不能、需不需要设置?本文结合FEM多年前发表的一篇技术通讯,再详细地讲一讲。 答: 背挡杆分为两种: 安全背挡杆:防止存取货物时,对 ...
event
2021-11-23
visibility
阅读: 238
货架横梁正面损坏如何判定?
问: 我们仓库正在进行每周巡检,请问如何划分横梁正面的损坏级别?对于横梁正面的凹陷变形,判定为橙色或者红色的标准是什么? 答: 对于横梁正面的凹陷变形,还没有明确的 ...
event
2021-11-22
visibility
阅读: 339
货架横斜撑的布置方向
问: 我们的一个新仓库安装了一批货架,货架的斜撑朝着不同的方向。我参加的一个培训提到,立柱组最底部斜撑杆的顶点必须向外(即指向巷道),以便更好地保护立柱。请问是这样
event
2021-11-22
visibility
阅读: 228
搁板式货架柱脚需要螺栓吗?
问:搁板式货架需要通过螺栓或者其他方式固定在地坪上吗?我们的工厂区域有轻型叉车通行。 答: 搁板式货架仅适用于手动放货,设计时并不考虑承受叉车或诸如拣选车、手动液压
event
2021-11-22
visibility
阅读: 179
驶入式货架(配备叉车)安装公差
货架的生产、组装和安装的公差、变形和净距,对货架功能实现、搬运设备的运行具有重要作用。对于确定货架的可靠性以确保机械搬运设备撞击、托盘撞击或系统崩溃的几率在可接受
event
2021-11-22
visibility
阅读: 290
悬臂式货架(配备叉车)安装公差
货架的生产、组装和安装的公差、变形和净距,对货架功能实现、搬运设备的运行具有重要作用。对于确定货架的可靠性以确保机械搬运设备撞击、托盘撞击或系统崩溃的几率在可接受
event
2022-11-11
visibility
阅读: 303
自动化立库货架(配堆垛机)安装公差
货架的生产、组装/安装的公差、变形和净距,对货架功能实现、搬运设备的运行具有重要作用,对于确定货架的可靠性以确保搬运设备撞击、托盘撞击或系统崩溃的几率在可接受的范围
event
2021-11-22
visibility
阅读: 204
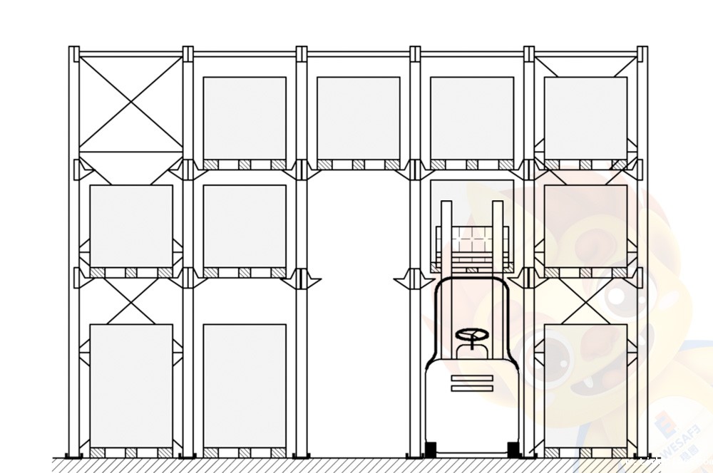
横梁式货架(配备叉车)安装公差
货架的生产、组装/安装的公差、变形和净距,对货架功能实现、搬运设备的运行具有重要作用,对于确定货架的可靠性以确保搬运设备撞击、托盘撞击或系统崩溃的几率在可接受的范围
event
2021-11-22
visibility
阅读: 277
货架结构设计:测试汇总
如前文所述,货架虽然是标准化产品,但是仅通过计算进行设计可能不够准确。因此,当计算分析方法未给出或者不适用时,应指定测试方法。 值得一提的是,以下所有测试均为辅助设
<
1
...
10
11
12
13
14
...
18
>
填写需求信息或留言提问,快速获取报价及解答
现在填写
map